Así será la reformada Sala Central Lechera de Cádiz: más accesible y con nueva grada

El proyecto de reforma de la sala situada en la plaza de Argüelles también incluye la inclusión de aseos en la planta baja y de un ascensor del que hasta ahora carecía el espacio, entre otras actuaciones

La Sala Central Lechera de Cádiz cierra sus puertas para una rehabilitación integral

Una imagen del estado actual de la Sala Central Lechera de Cádiz.
Una imagen del estado actual de la Sala Central Lechera de Cádiz.

A la espera de que los trabajos salgan a licitación pública, la Sala Central Lechera de Cádiz aguarda el comienzo de una importante reforma que reordenará el espacio que se levanta en la plaza de Argüelles para convertirlo en un teatro mucho más accesible. Una iniciativa que los responsables de Teatros de Cádiz anunciaron este verano, pero de la que ahora conocemos nuevos detalles como la creación de una nueva grada para el público.

De hecho, la situación de la actual grada es la que, en buena parte, impide un acceso mucho más universal, y necesario, para esta sala que tiene una de las programaciones de teatro, música y danza más estables y continuadas de la ciudad. Por ello, se hace imprescindible afrontar esta rehabilitación que tendrá a La Lechera cerrada, previsiblemente, la presente y la próxima temporada, pero de la que renacerá, a buen seguro, un contenedor cultural mucho más amable, inclusivo y moderno.

Así, la principal condición de partida del proyecto es la falta de adaptación del espacio para personas con movilidad reducida que, con la distribución actual del espacio, se deben enfrentar a los estrechos pasillos de la planta baja y, sobre todo, no pueden acceder a los aseos, que están situados en la primera planta que se alcanza, exclusivamente, por una escalera. Además, la situación actual de la grada obliga a que no se supere el aforo de 100 personas máximo para poder tener accesible una de las dos salidas de emergencia con las que cuenta el edificio.

Distribución actual de la planta baja de la Sala Central Lechera de Cádiz.
Distribución actual de la planta baja de la Sala Central Lechera de Cádiz.

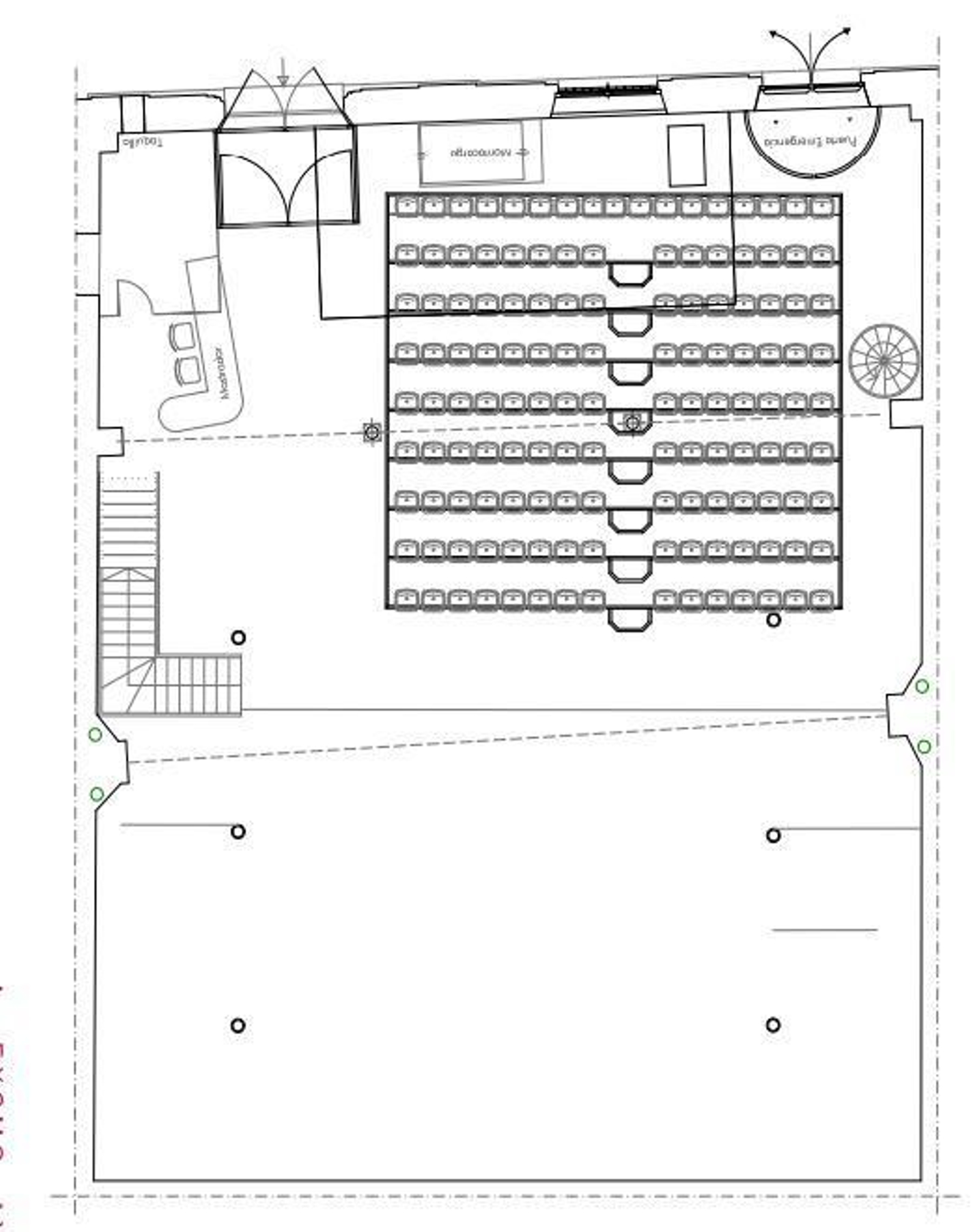
De esta forma, el grueso de las actuaciones que se van a realizar en La Lechera, que tiene una superficie construida de 542,79 m² en total, se realizarán en la planta baja. La intención, como se ha dicho, es incorporar aseos -cuatro unidades son las que se recogen en el proyecto- en este área y mantener un pasillo perimetral que permita tanto la circulación, como las salidas en caso de emergencia. Para conseguirlo, hay que mover la grada destinada a los espectadores que en la actualidad queda desplazada hacia la derecha desde el escenario, dejando la salida de emergencia en precario al no poder acceder a ella desde la zona lateral, debido a la escasa altura libre bajo la escalera de caracol existente, pero tampoco desde la zona trasera, donde no existe anchura suficiente para el paso.

La actuación consistiría en desmontar la estructura de las gradas y construir unas nuevas centradas entre dos de las columnas metálicas que sostienen la galería perimetral de la planta alta. De esta forma, se consigue liberar en los laterales un espacio de 2,5 metros de ancho. La grada, además, se adelantará hacia el escenario, rescatando en la trasera el espacio para completar el pasillo perimetral (parte de este pasillo queda por debajo de la grada) permitiendo un corredor más ancho que alcanza más de 2 metros en todo su recorrido y que podrá servir de recibidor en la zona de la entrada.

Esta nueva grada será retráctil (excluyendo las dos últimas filas que serán fijas) hasta la zona de las columnas de forma que se pueda utilizar en momentos determinados la zona de butacas como parte ampliada del escenario.

A los laterales que deja esta nueva infraestructura es donde se colocarán los aseos de público general, dos para cada sexo, pero para hacerlo efectivo se tendrá que trasladar la escalera que lleva a la primera planta al área de primera crujía, es decir, junto a la entrada principal. En esta nueva situación, se construirá una escalera en un espacio único en todos sus tramos, desde la planta baja a la segunda. Y bajo la losa de la escalera se conservaría el espacio de taquillas.

Distribución tras la reforma de la planta baja de la Sala Central Lechera de Cádiz.
Distribución tras la reforma de la planta baja de la Sala Central Lechera de Cádiz.

Además de la nueva escalera, en el área que actualmente ocupa el montacargas (un elemento que no está preparado para el público general y que, por ello, será retirado) se colocará un ascensor en cuya trasera en la planta baja se situará el aseo adaptado y un vestíbulo de independencia de la salida de emergencia.

La actuación se completa con la ejecución de una nueva solería de madera de todo el piso ya que el revestimiento vinílico del suelo que tiene la Lechera está levantado por diversas zonas, lo que puede implicar riesgo de caídas.

Las actuaciones en primera y segunda planta

Aunque los trabajos principales se realizarán en la planta baja, las plantas primera y segunda de la Sala Central Lechera también se someterán a algunas actuaciones.

Así, se prevé reordenar la planta primera con la intención de crear dos vestuarios con ventilación directa a la calle. Cada vestuario contará con aseo y ducha propios. Ademas, se reubicará el cuarto de cuadros eléctricos y la zona de almacenaje y en el pasillo que bordea el patio del edificio se crearán armarios para almacenar todos los elementos que actualmente colmatan dicho espacio. La escalera existente de subida a la planta superior será demolida para ejecutar la nueva escalera que ahora continúa hasta la segunda planta.

En ese piso es donde se creará un aseo adaptado para el uso de los empleados, además de ampliarse la oficina. La ubicación del nuevo ascensor y el aseo se situarán en un vestíbulo previo desde el que se accederá a un despacho que ocupará el resto de superficie. Eso sí, antes de enfrentar estos trabajos de la segunda planta, hay que subsanar diversas patologías que se han detectado en los trabajos previos como fisuras en el cerramiento de fachada.

Todas las actuaciones previstas en la Sala Central Lechera parece que llevarán un tiempo de ejecución de seis meses y requerirán de una inversión total (impuestos incluidos) de 354.761,69 euros, según el proyecto.

stats